细长轴类件在表面淬火过程中,通常采用设备上下顶在工件的孔里来固定工件。这样在淬火过程中,由于工件长度方向尺寸增长,加之的固定使得工件在长度方向上无法伸长致使变形加大,进而加大了校直的成本。对直径在25mm以下的细长工件,甚至由于变形太大,无法校直而报废。为解决这一问题,我们设计了细长轴类零件连续喷冷淬火时,工件能在垂直方向上相对自由伸长的工装。
1.设计原理
细长轴类零件表面淬火变形很大,主要来自淬火时工件在长度方向无法自由伸长,要减少变形工件在长度方向能自由伸长。为此我们设计一个内台阶空心轴,其中一个内孔和上通过螺钉相联,用来把工装固定在设备上。轴类件上轴颈的一部分深入到内台阶的另一个孔中,轴的下孔放在下上,用来装夹轴类件。淬火时,工件加热伸长,上轴颈在台阶孔内伸长变得相对自由,进而解决了现有装夹方式带来的细长轴类件表面淬火时,在长度方向无法伸长而导致变形太大的问题。
工件加热到淬火温度,会明显地伸长,必然会使工件轴颈局部和套内壁在较小范围内线接触,并在垂直的方向上能相对滑动,进而使工件热处理时达到相对自由伸长,从而达到减小变形的目的。
2.工装设计
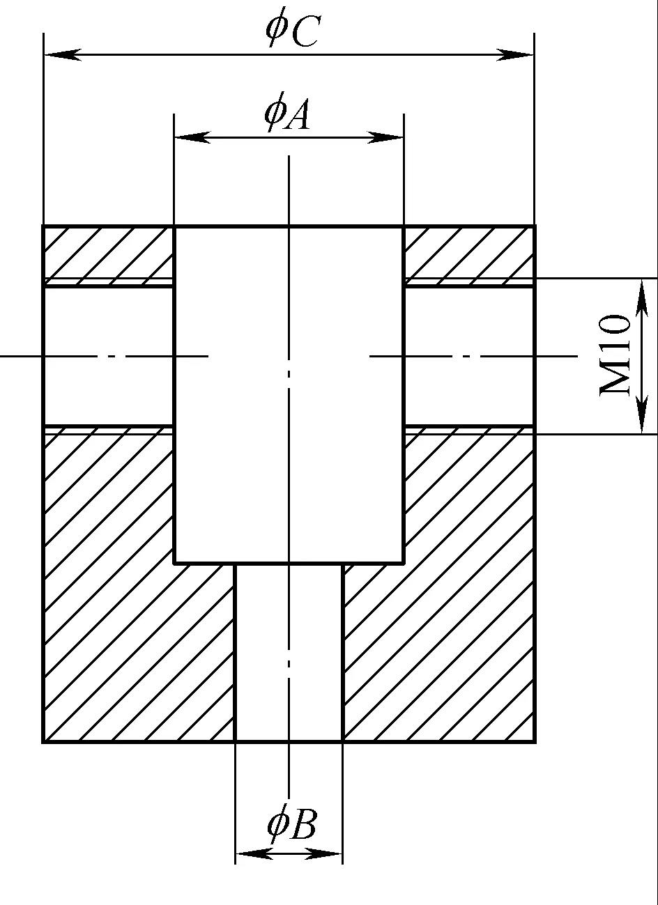
图1所示为细长轴类件表面淬火工装,是一个具有3个螺孔的台阶套,套上有3个均匀分布的螺孔,3个螺孔均布在一个平面上。

图1 表面淬火工装
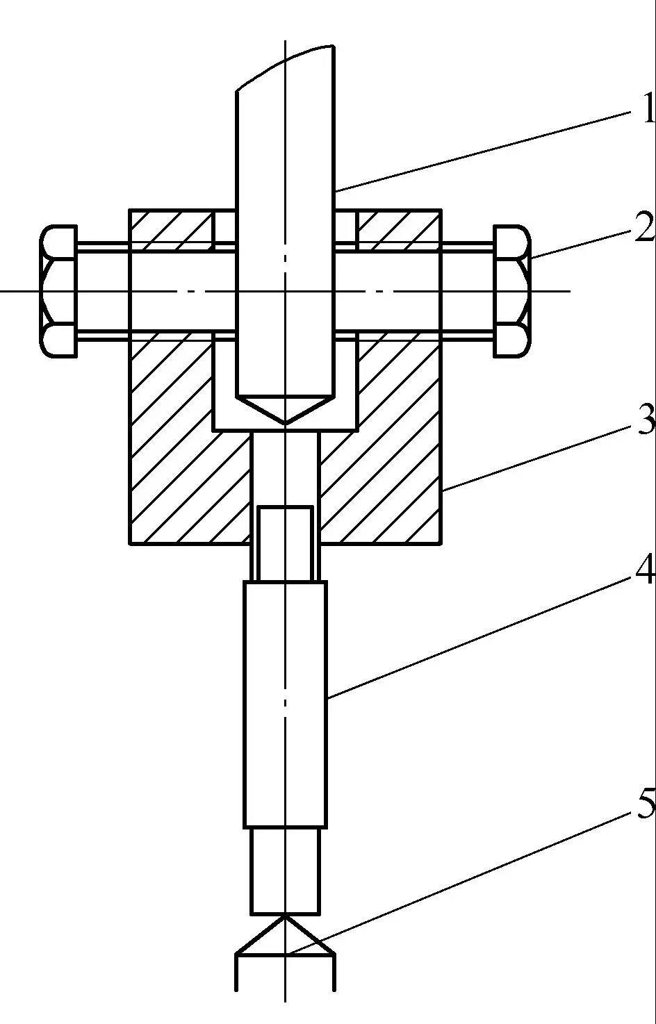
图2为细长轴类零件连续喷冷淬火时,表面淬火工装装夹细长轴的示意。图2中的上1插入图1的φA中,并通过图2中3个M10的螺钉2把表面淬火工装3通过螺纹扣紧紧地固定在上1上和设备相连(淬火工装3和上1约0.5mm的间隙,便于装配)。细长轴4的上轴颈插入图1中φB的孔中,工件的下孔立放在下5上,达到装夹细长轴4的作用,而且工件上轴颈可以在φB的孔中相对自由的移动。淬火工装3和工件4轴颈约1mm的间隙,防止淬火时,工件小的变形引起伸长受阻。工件淬火过程中的旋转主要靠下带动。工件通过上述装夹,淬火伸长的部分可以相对自由地进入φB的孔中,从而达到减少淬火变形的目的。

图2 淬火工装装夹工件示意
1.上 2.螺钉 3.表面淬火工装 4.细长轴 5.下
3.结语
细长轴类零件表面淬火工装,制作简单,操作方便,地解决了该类件变形较大的问题,降低了矫直成本,避免了矫直风险。